20
Оренда офісу 198м2 на вул. Саксаганського 53/80, Центр
id: 27827
4,258 $/ місяць
$
₴
Офіс
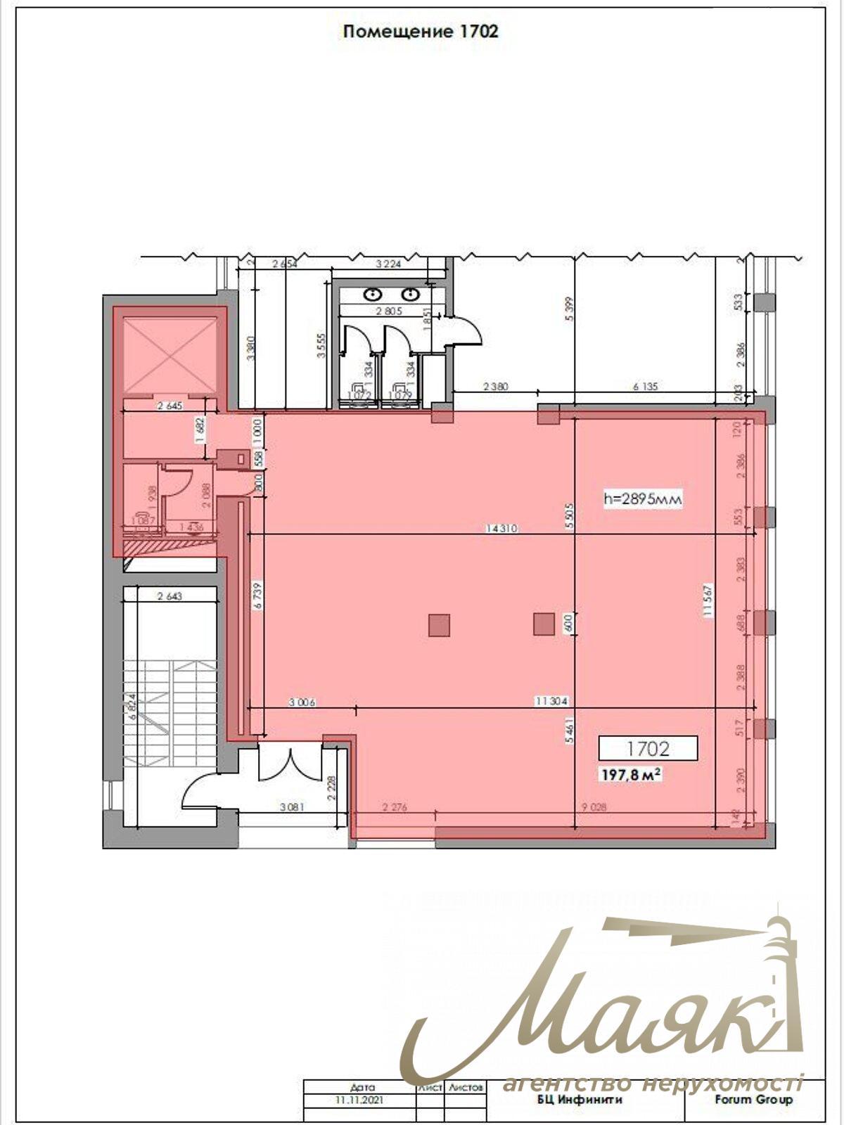
загальна площа: 198 м²
поверх/поверховість: 7/10
Опис
Офіс 197,80 м² у бізнес-центрі Forum Group "Infinity" - преміум-простір на 7 поверсі для надихаючої роботи В оренду пропонується світлий і просторий офіс площею 197,80 м² (або 227,47 м² з урахуванням загальних зон), розташований на 7-му поверсі корпусу 1 ділового центру класу A - Forum Group "Infinity". Ідеально підходить для динамічних команд, яким важливий комфорт, престиж та інфраструктура. = Планування: Open Space - легко адаптується під ваш стиль роботи Два повноцінні санвузли Дві зони під кухні, з підведеною водою = Доступ: Дві групи входу - з одним і двома ліфтами Альтернативний вхід по сходах = Технічне оснащення: Автономне газове опалення Резервне електроживлення від дизель-генератора Мультизональне кондиціонування та вентиляція Високошвидкісний інтернет і телефонія Система протипожежної безпеки Ліфти KONE нового покоління Цілодобовий доступ із контролем = Інфраструктура "Infinity": Стильне двоповерхове лобі Дві авторські кав'ярні зі specialty-кавою Панорамна тераса на даху Фітнес-зал і масажний кабінет Лаунж із басейном Зелений двір із дизайнерським благоустроєм Затишне опалювальне бомбосховище, що опалюється У пішій доступності - метро Університет, Вокзальна, Олімпійська = Резиденти вільно користуються всіма зручностями: проводять заходи, корпоративи, заняття з йоги та ділові зустрічі. = Умови оренди: Базова ставка - $9,00/м² OPEX - $6,60/м² ПДВ - нараховується додатково = Підсумкова сума з ПДВ: $4 258,24 / міс. = Зв'яжіться з нами - організуємо перегляд і підберемо рішення, яке ідеально підійде вашій команді.





















































