13
Оренда офісу 248м2 у БЦ Victoria Park, метро Васильківська
id: 27476
4,233 $/ місяць
$
₴
пров. Охтирський, 7Голосієво, Голосіївський район, Київ
Офіс
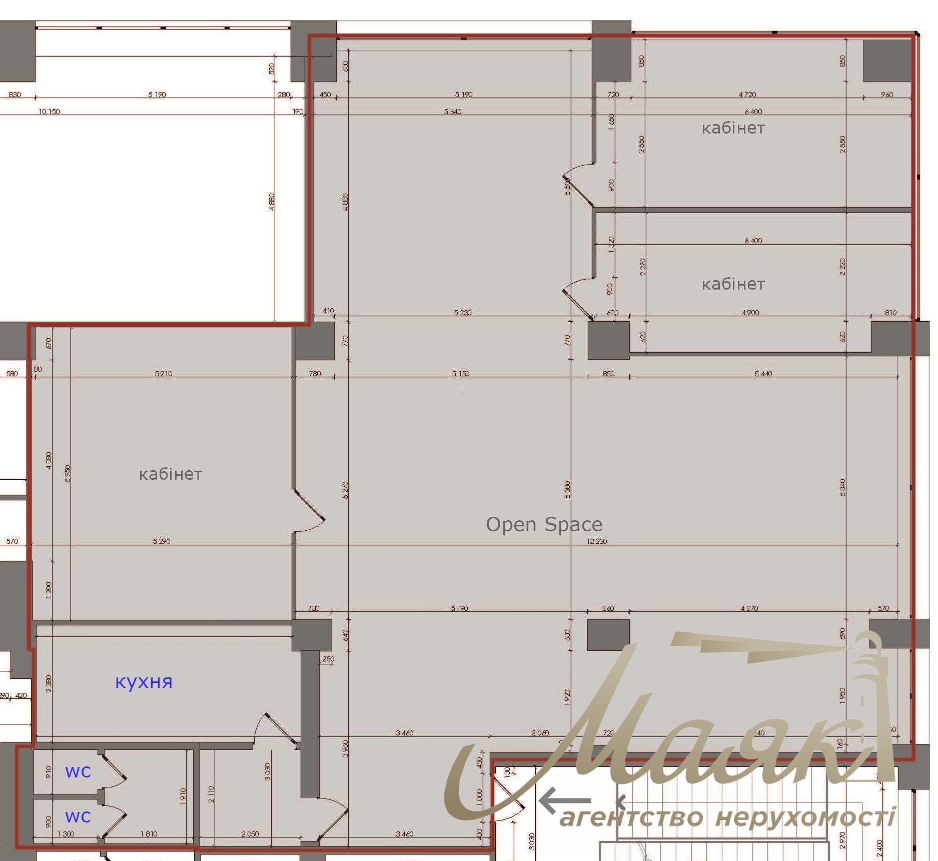
загальна площа: 250 м²
поверх/поверховість: 2/3
Опис
Офіс 248 м² у бізнес-центрі Victoria Park. провулок Охтирський, 7, метро Васильківська - 7 хвилин пішки Open Space, 3 кабінети, кухня, 2 санвузли 2 поверх Переваги бізнес-центру: -Автономне опалення (власна твердопаливна котельня) -Безперебійне електропостачання -Безперебійний інтернет (оптичне волокно) -Припливно-витяжна вентиляція та кондиціонування -Їдальня, кафе -Зона відпочинку -Зона барбекю для зустрічей із колегами та партнерами -Спортивний майданчик -Почтомат Нової пошти, банкомати, термінали -Укриття з опаленням, меблями та Wi-Fi -Велика парковка для зручності співробітників і клієнтів -Охорона 24/7 -Доступ до приміщення 24/7 Вартість: 4 233 $ (з ПДВ) Умови оренди: Мінімальний термін - 3 роки, індексація 1$/м² щорічно.






































