16
Оренда офісу 944 м2 у БЦ з ремонтом, терасою Олімпійська
id: 28302
22,656 $/ місяць
$
₴
вул. Сім'ї Прахових, 58/10Паньківщина,  Голосіївський район,  Київ 
Офіс
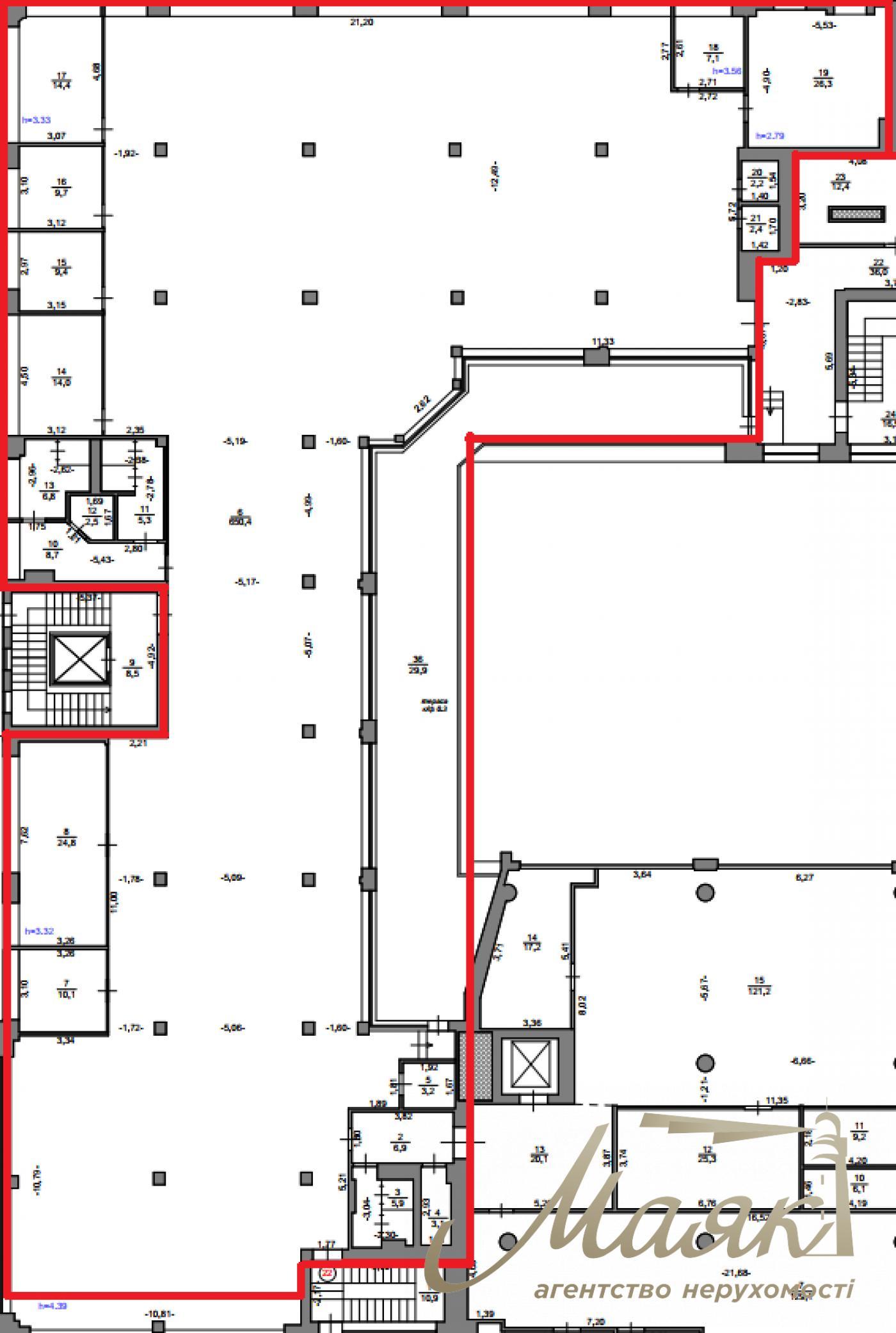
загальна площа: 944 м²
поверх/поверховість: 5/9
Опис
Офісне приміщення площею 944м² із сучасним ремонтом, просторою терасою! Готове до швидкого заселення! Розташування: БЦ 5-й поверх, вул. Сім'ї Прахових. Зручний доступ до двох ліній метро - Олімпійська та Вокзальна (всього 10 хвилин пішки). Простір включає: -Open space -кабінети -переговорні -skype room -серверну -кухню -3 WC -терасу Інфраструктура бізнес-парку: трирівнева парковка на 450 місць; -4 точки харчування; -затишний внутрішній двір із зоною відпочинку; -відкрита тераса; -салон краси; -арт-студія; -конференц-зал; -парковка з електрозарядками для самокатів і велосипедів. Технічні особливості будівлі: автономне опалення; система кондиціонування чиллер-фанкойл; вентиляція з попередньою підготовкою повітря. Вартість вказана з урахуванням знижки на період воєнного стану. Також доступні інші офісні приміщення в бізнес-парку. Код об'єкта № 28302













































