16
Продаж дворівневої 5-кімнатної квартири по вул. Клеманська 3 у ЖК Sister
id: 29727
154,593 $
$
₴
вул. Клеманська, 3ЖК Sister, Позняки, Дарницький район, Київ
6 кімнат
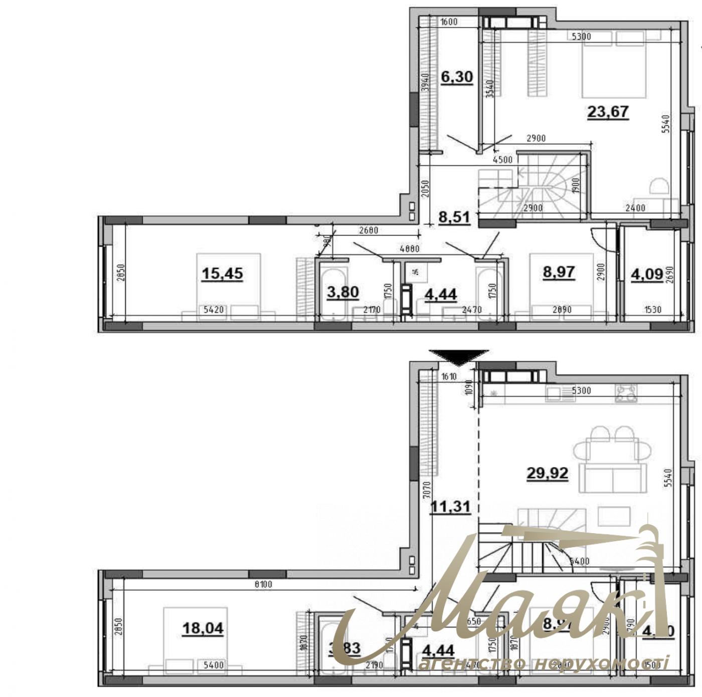
загальна площа: 155 м²
площа кухні: 29 м²
поверх/поверховість: 9/9
без ремонту
Опис
Продається дворівневий пентхаус у сучасному житловому комплексі комфорт-класу Sister Квартира площею 155 м2 спроєктована у форматі "міської вілли" і містить п'ять окремих кімнат, простору кухню-вітальню та чотири санвузли. Планування дає змогу розділити простір на загальну зону для відпочинку і приватну зону зі спальнями, кабінетом або спортзалом. У квартирі встановлено панорамні вікна з 5-камерним профілем і двокамерним склопакетом, також передбачено балкон-лоджія. Технічна інфраструктура будинку забезпечує повну автономність: опалення та гаряче водопостачання здійснюються через власну дахову котельню, а подача води - через особисту свердловину. До комплектації включено систему безпеки Ajax (хаб, датчики руху та відкриття, брелок із тривожною кнопкою). Квартира здається з чистовою цементно-піщаною стяжкою, сталевими радіаторами та розводкою опалення в підлозі. Встановлено металеві протипожежні двері (клас EI 30) та індивідуальні лічильники на всі види комунікацій. ЖК має закриту територію з контролем доступу та реалізованою концепцією "двір без авто". Для мешканців передбачені сучасні паркінги. На території комплексу розташовані власна школа і дитячий садок. У пішій доступності знаходяться ТРЦ River Mall і набережна Дніпра. Здача будинку запланована на 2027 рік. Площа - 155 м2 Кількість кімнат - 5 Кількість санвузлів - 4 Поверх - 9/9 Висота стель - 2.7 м Безпека - система Ajax у комплекті Автономність - власна котельня та свердловина Термін здачі - 2027 р. Зв'яжіться з нами для отримання презентації об'єкта та запису на перегляд.












































