7
ЖК А136 за адресою вул. Антоновича, 136-138 Продаж 79 м.кв м. Київ
id: 10693
217,000 $
$
₴
вул. Антоновича, 136Голосієво, Голосіївський район, Київ
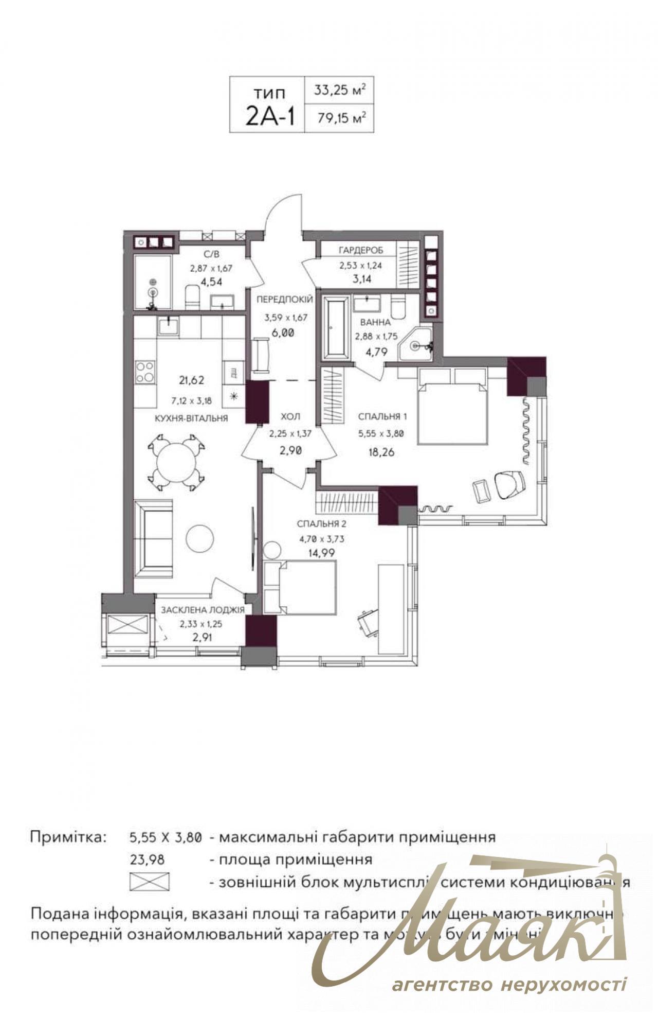
загальна площа: 79 м²
житлова площа: 33 м²
площа кухні: 22 м²
поверх/поверховість: 18/33
капітальний ремонт
Опис
Продаж 2х до квартири в ЖК А136 за адресою вул. Антоновича, 136-138. ЖК бізнес-класу А136 у Києві, що будується, розташований поруч із метро Палац Україна і ТРЦ Ocean Plaza. Монолітна вежа 33 поверхи з підземним паркінгом, пентхаусами та 4 поверхами комерційних приміщень у стилобаті. Квартира знаходиться на 18/33 поверсі. Високий видовий поверх з видом на Антоновича Площа квартири 79,15/33,25/21,62 м.кв . Житловий комплекс A136 Highlight House розташований у центрі подій та інфраструктури. До ТРЦ Ocean Plaza лише 2 хвилини на автомобілі, бізнес-центр "Парус" за 10 хвилин. Розташування житлового комплексу А136 - це безумовна перевага проєкту над іншими. 2 хвилини пішки до станції метро "Палац Україна", 10 хвилин пішки до Ocean Plaza, Володимирський ринок.


























