5
Оренда фасаду 152м2, ЖК Лебединий
id: 28520
1,216 $/ місяць
$
₴
вул. Ревуцького, 40ЖК Лебединий, Позняки, Дарницький район, Київ
Інший об'єкт
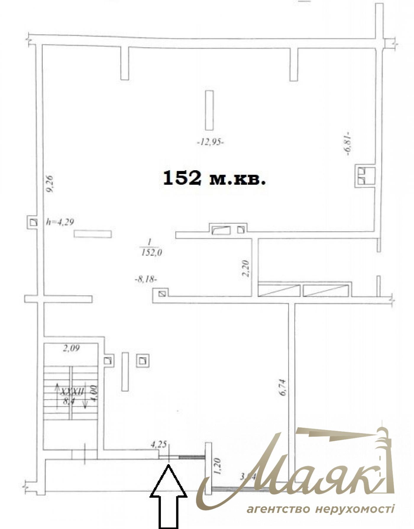
загальна площа: 152 м²
поверх/поверховість: 1/25
Опис
Оренда 152м2, ЖК "Лебединий", торгове приміщення Пропонується в оренду/продаж торгове приміщення в густонаселеному ЖК Лебединий, біля метро Харківська. Стан - без ремонту. Не житловий фонд. Комунікації: міська вода, каналізація, електрика. Власник - ТОВ із ПДВ. Вакантна площа: 152м.кв. Вартість продажу: 281 200у.о. (1850у.о./м.кв.) податки Вартість оренди: 8$ 1 рік, 12$ - другий, 14$ - третій рік #28520






















