25
Продаж 2-кімнатної квартири з видом на Дніпро в ЖК GREAT, Осокорки, Київ.
id: 29696
120,000 $
$
₴
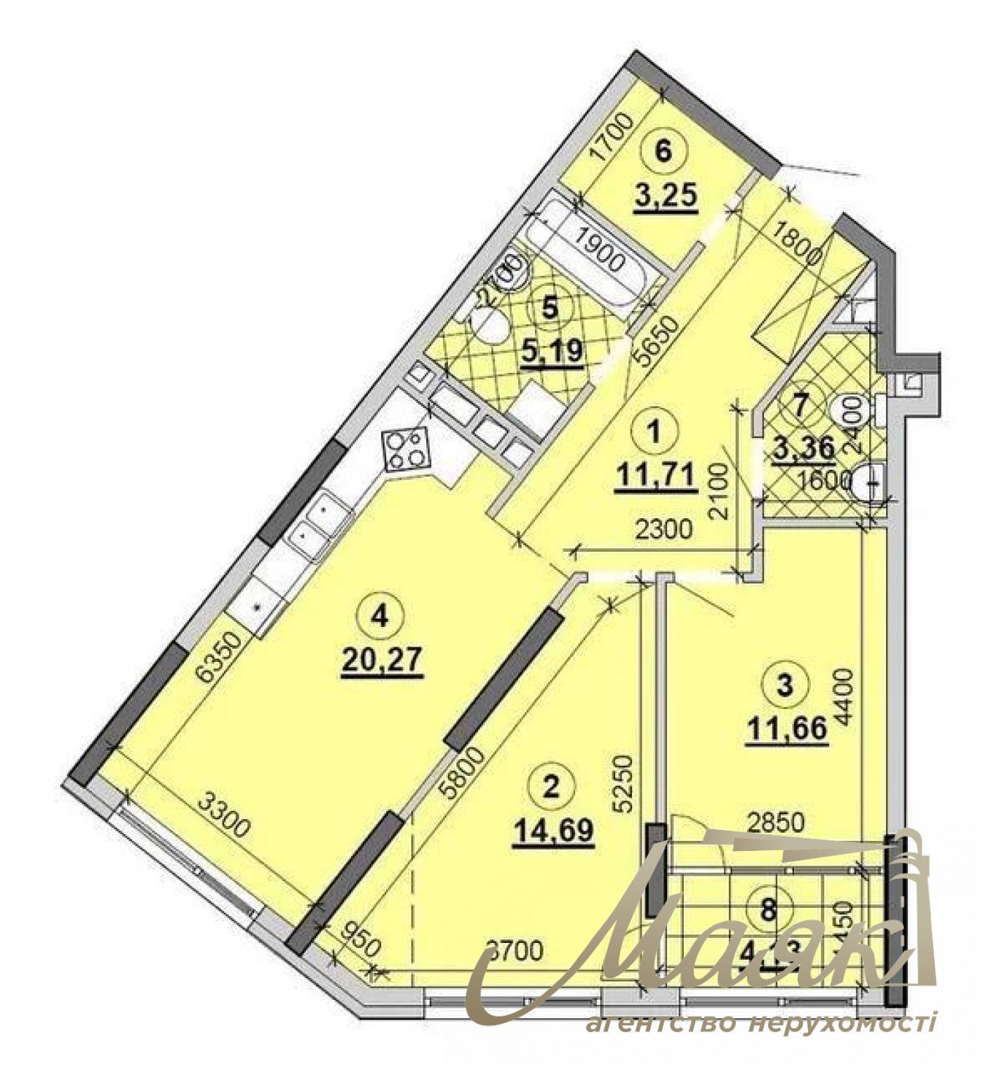
загальна площа: 75 м²
житлова площа: 35 м²
площа кухні: 20 м²
поверх/поверховість: 19/24
без ремонту
Опис
Продаж 2-кімнатної квартири з видом на Дніпро в ЖК GREAT, Осокорки, Київ. Пропонується до продажу видова квартира на лівому березі Києва, Дніпровська набережна, житловий комплекс ЖК Грейт. Квартира розташована на 19 поверсі 26-поверхового будинку, загальна площа 75 м², планування 2С6. Квартира від забудовника, без ремонту, що дозволяє реалізувати власний дизайн-проект. Планування включає дві окремі спальні, простору кухню-вітальню, два санвузли та зручну вхідну зону без зайвих коридорів - максимум корисної площі. З вікон відкривається панорамний вид на Дніпро, Печерськ, Лавру та монумент "Батьківщина-Мати", високий 19 поверх забезпечує багато світла, тишу та відчуття простору. ЖК GREAT/Грейт - один з найбільш затребуваних житлових комплексів Осокорків і лівого берега Києва, розташований на Дніпровській набережній, поруч з метро Осокорки, в пішій доступності знаходиться River Mall, набережна, нові парки і вся необхідна інфраструктура. Комплекс має концепцію "місто в місті": власний екопарк, дитячий садок, школу, сучасні вхідні групи, швидкісні ліфти та впорядковану територію. Поруч розташовані житлові комплекси ЖК Seven, ЖК Славутич, ЖК Зарічний і ЖК RiverStone. Квартира з готовими документами, податки включені у вартість, можливий швидкий вихід на угоду. Це відмінний варіант як для життя, так і для інвестиції в нерухомість Києва, особливо якщо ви розглядаєте купівлю квартири з видом на Дніпро в сучасному комплексі Осокорків. Телефонуйте для отримання детальної інформації та організації перегляду.






























































