3
Продаж 3-х кімн. квартири, 88 м2, у ЖК Crystal Park Tower
id: 6374
212,000 $
$
₴
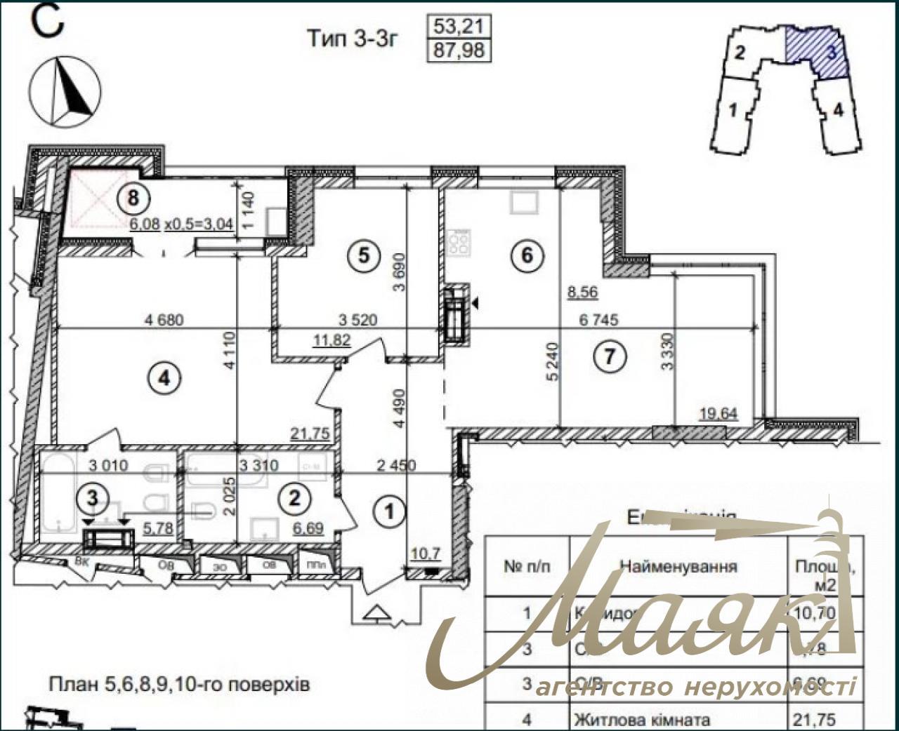
загальна площа: 88 м²
житлова площа: 59 м²
площа кухні: 29 м²
поверх/поверховість: 8/22
без ремонту
Опис
Продається чудова трикімнатна квартира в найсучаснішому будинку бізнес-класу ЖК Crystal Park Tower, який розташований за адресою: проспект Перемоги, 42, у дивовижному місці серед 60 га зелених зон, поблизу парку Пушкіна, парку КПІ та зоопарку. Квартира розташована на 8 поверсі, у третій секції. Панорамне скління та велика тераса, дозволить вам милуватися прекрасними видами. Також територія закритого типу, багаторівнева система безпеки (карткова система доступу, відеоспостереження, охорона). Високий рівень сервісу, зручна транспортна розв'язка, розвинена інфраструктура. #6374


















