4
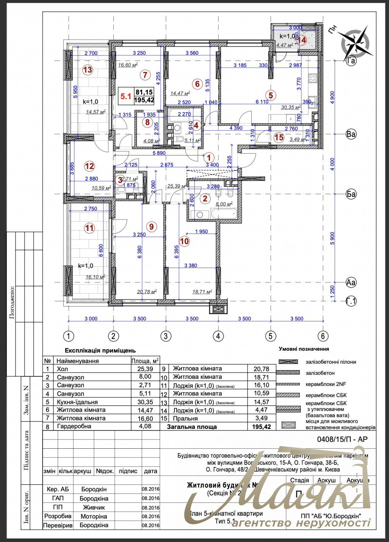
Продаж 5-к квартири 200 м2 у ЖК Ярославів Град вул.Бульварно-Кудрявська 15а
id: 10342
480,000 $
$
₴
5 кімнат
загальна площа: 200 м²
поверх/поверховість: 7/20
без ремонту
Опис
ЖК бізнес класу "Ярославів Град". Вул. Бульварно-Кудрявська (Воровського) 15а. Продаж унікальної 5-ти кімнатної квартири з трьома санвузлами і можливістю обладнати терасу Будинок зданий, можна заходити на ремонт Квартира у 2-й секції виходить на Бульварно-Кудрявську Комплекс закритого типу, можливість купити паркінг. Таких планувань більше немає - одна така квартира в ЖК ID 10342




















