7
Продаж комерційного приміщення 27 м.кв. вул. В. Тютюнника, Печерськ
id: 30121
149,000 $
$
₴
вул. Василя Тютюнника, 49Центр, Печерський район, Київ
Об'єкт сфери обслуговування
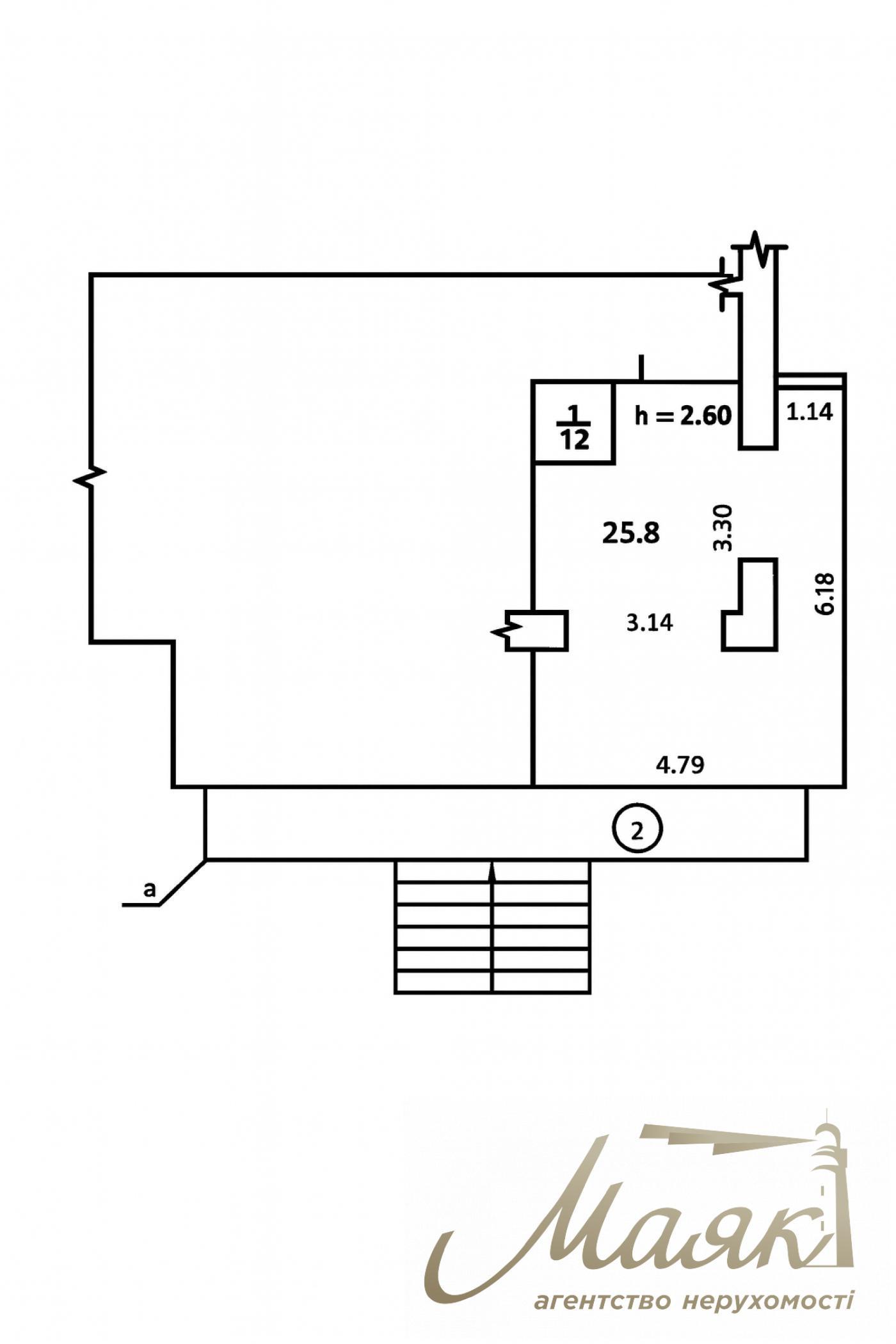
загальна площа: 27 м²
поверх/поверховість: 1/5
косметичний ремонт
Опис
Продаж комерційного приміщення з діючим орендарем | 27 м² | Печерський район Локація / орієнтир: г. Київ, Печерський район, вул. Василя Тютюнника, 49 Топова локація поруч із преміальними житловими комплексами міста. Основні характеристики: Площа - 27 м² Формат - комерційне приміщення Стан: - приміщення з ремонтом - повністю готове до експлуатації Орендар: - діючий орендар: buzzy coffee - стабільний місячний дохід - 42 000 грн Переваги: - готовий орендний бізнес з першого дня - вигідне розташування біля заїзду в ЖК "Французький квартал" і "Бульвар Фонтанів" - високий пішохідний і автомобільний трафік - ліквідний формат для інвестицій Інвестиційна привабливість: - стабільний грошовий потік - мінімальні ризики за рахунок чинного орендаря - затребувана комерційна локація Телефонуйте - надам детальну інформацію та організую перегляд! ID 30121


























