10
For sale 3-bedroom apartment, 137 m², Antonovicha str. 3A, the center of Kiev
id: 29170
300,000 $
$
₴
3 rooms
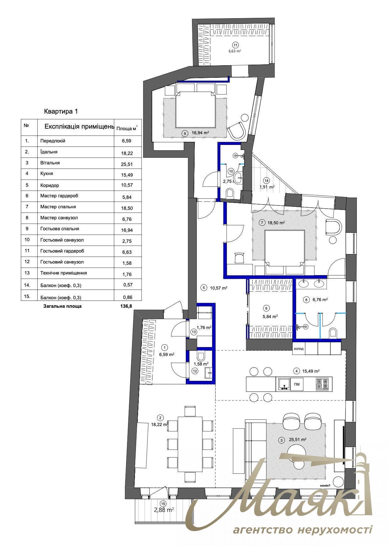
total area: 137 м²
living area: 80 м²
kitchen area: 56.8 м²
floor/number of floors: 6/6
partial repair
Description
For sale view 3-room apartment, 137 m², Antonovycha street 3A, the center of Kiev. Panoramic duplex in a facade pre-revolutionary house opposite Shevchenko Park. Triangular planning provides maximum light and space. Ceiling height - 3,4 meters. Characteristics of the apartment: Area: 137 m². 3 rooms 2 balconies (one overlooking Shevchenko Park and the boulevard part of Antonovych Street) 3 bathrooms, 2 dressing rooms, hall Condition: after builders - full freedom for the realization of design ideas, possible installation of a fireplace Layout: Large kitchen-living room with access to the front balcony 2 separate bedrooms House: Reinforced concrete slabs Elevator Entrance hall after repair Premium-class location: Near Taras Shevchenko Park, Botanical Garden Ploshchad Ukrainskikh Geroev metro station Business centers, restaurants, boutiques, convenient infrastructure An ideal option for those who appreciate space, light and central location. Call and sign up for viewing - the apartment is ready to show! ID: 29170
































