17
For sale 3-bedroom apartment with private terrace in Lipki Institutska str., 13A (211 m²) Khreschatyk - in walking distance.
id: 29166
970,000 $
$
₴
3 rooms
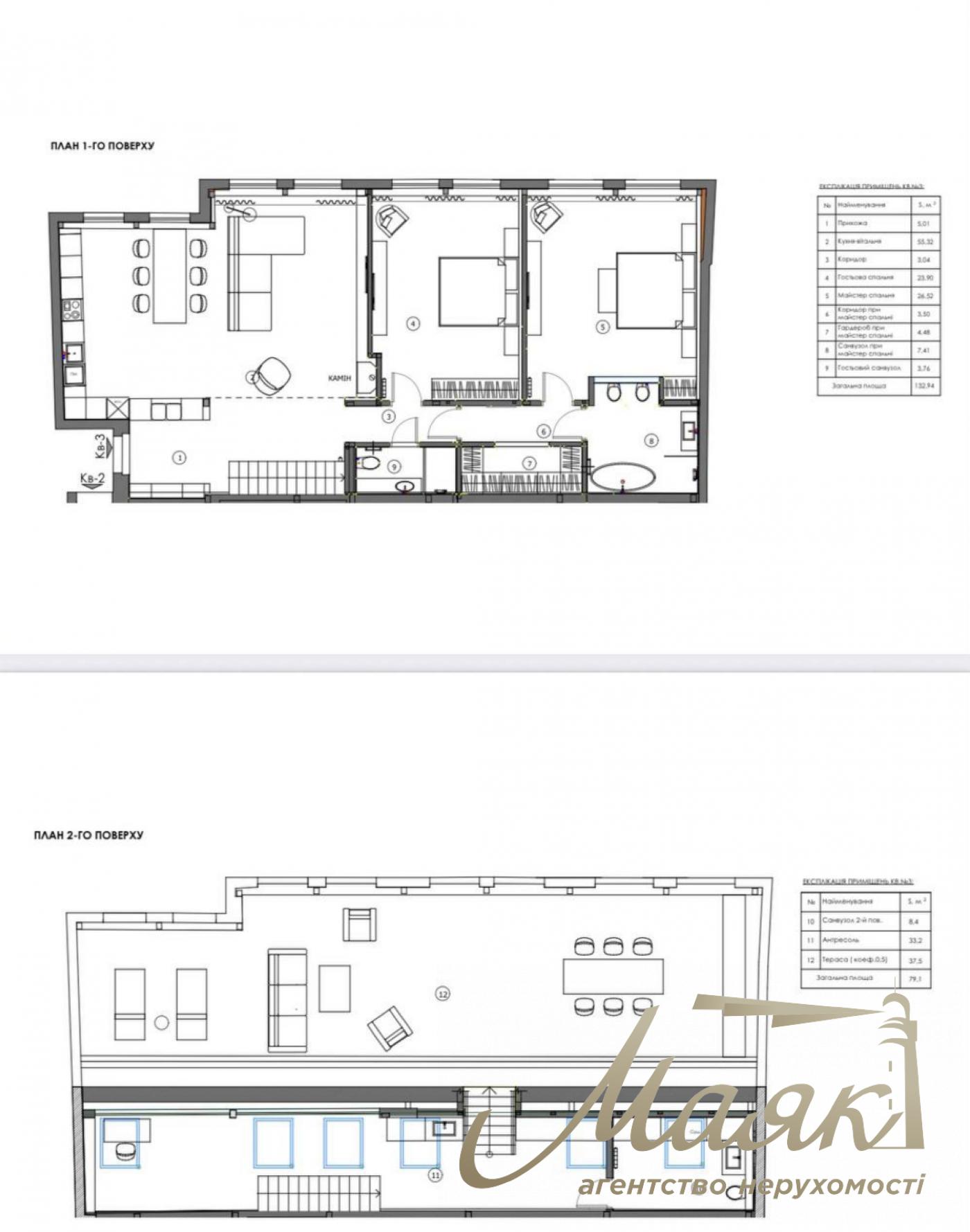
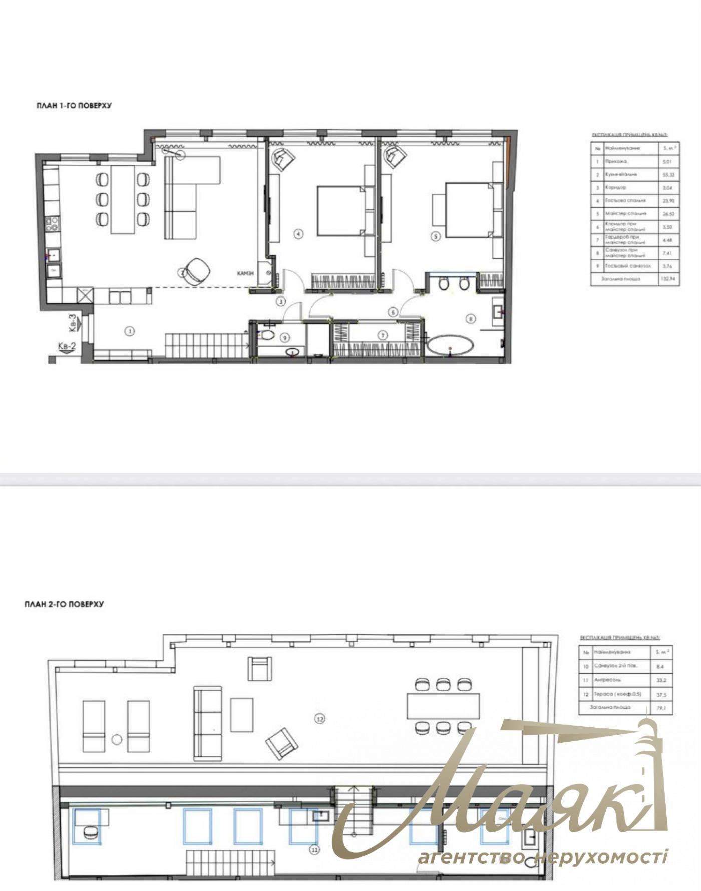
total area: 211.5 м²
kitchen area: 56.1 м²
floor/number of floors: 6/6
designer renovation
Description
For sale 3-room apartment with private terrace in Lipki Institutska str., 13A (211 m²) Khreshchatyk - in walking distance. We offer a unique property in the most prestigious area of Kiev - government quarter Lipki. The house at Institutska 13A is a reconstructed facade mansion of the pre-revolutionary era, combining historical architecture and modern standards of comfort. Only 2 minutes walk to the Mariinsky Park and the Office of the President. The main advantages of the object: Total area - 211 m² 3 rooms Private outdoor terrace - a rarity for the center of Kiev Author's designer repair (full readiness according to the project - 01.07.2026) Ceiling height - 3.5 m, a sense of space and light Panoramic natural light, pleasant views from the windows Unique, well thought-out layout About the house and the territory: Presentable entrance group Entrance hall after major renovation on all floors New spacious elevator Aesthetic facade doors Private parking in a closed courtyard Quiet, safe and status environment This offer is for those who appreciate location, privacy and architectural value, and who want to live in the very center of the capital without giving up comfort and space. A rare object on the real estate market of Kiev. Contact me for more information and to organize a personal viewing. ID:29166














































