3
For sale 3-room apartment, 119 m2 in LCD Novopecherskie Lipki Dragomirova 7 turn
id: 27637
283,400 $
$
₴
st. Andriya Verhoglyada, 1-20аZhK Novopecherski Lipki, Pechersk, Pecherskiy district, Kyiv
3 rooms
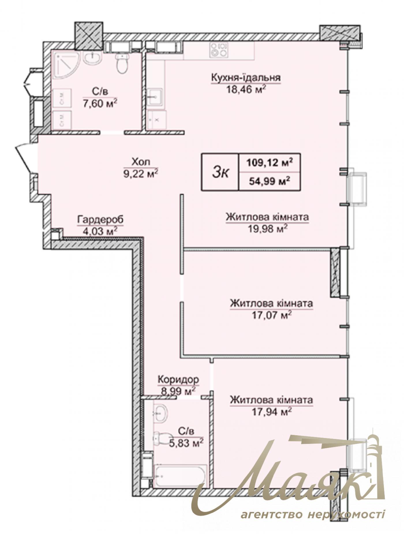
total area: 109 м²
living area: 55 м²
kitchen area: 19 м²
floor/number of floors: 6/24
without repair
Description
We offer for sale 3-room apartment without repair in the most popular residential complex of premium level in Kiev "Novopecherskie Lipki" (Dragomirova Street. 8 turn). View on the inner courtyard. Total area - 109,12 sq.m. Living area - 55 sq.m. Kitchen - 19 sq.m. Floor / Floors - 6/24 The apartment is characterized by a spacious, comfortable and functional layout (two separate bedrooms, kitchen-studio, two bathrooms, dressing room). The residential complex Novopecherskie Lipki is unique in its internal infrastructure, which is developed according to the plan "city in the city". The internal infrastructure of Novopecherskie Lipki is for many residents the most attractive attribute of this residential complex. On the territory of this mini city you will find its own international and secondary school, its own landscaped park, several restaurants, a full-fledged gym with a swimming pool and even tennis courts. AN Mayak is your best assistant for buying, selling or renting premium real estate in Ukraine and abroad. Our offices are located in Novopecherskie Lipki Residential Complex (20 Dragomirova Street) and French Quarter 2 Residential Complex (3a J. McCain Street), as well as in Dubai (United Arab Emirates). Object code 27637


















