8
Office for rent 286 m2, Delovaya str. 5B, Pechersk
id: 20885
4,004 $/ month
$
₴
Office
5 rooms
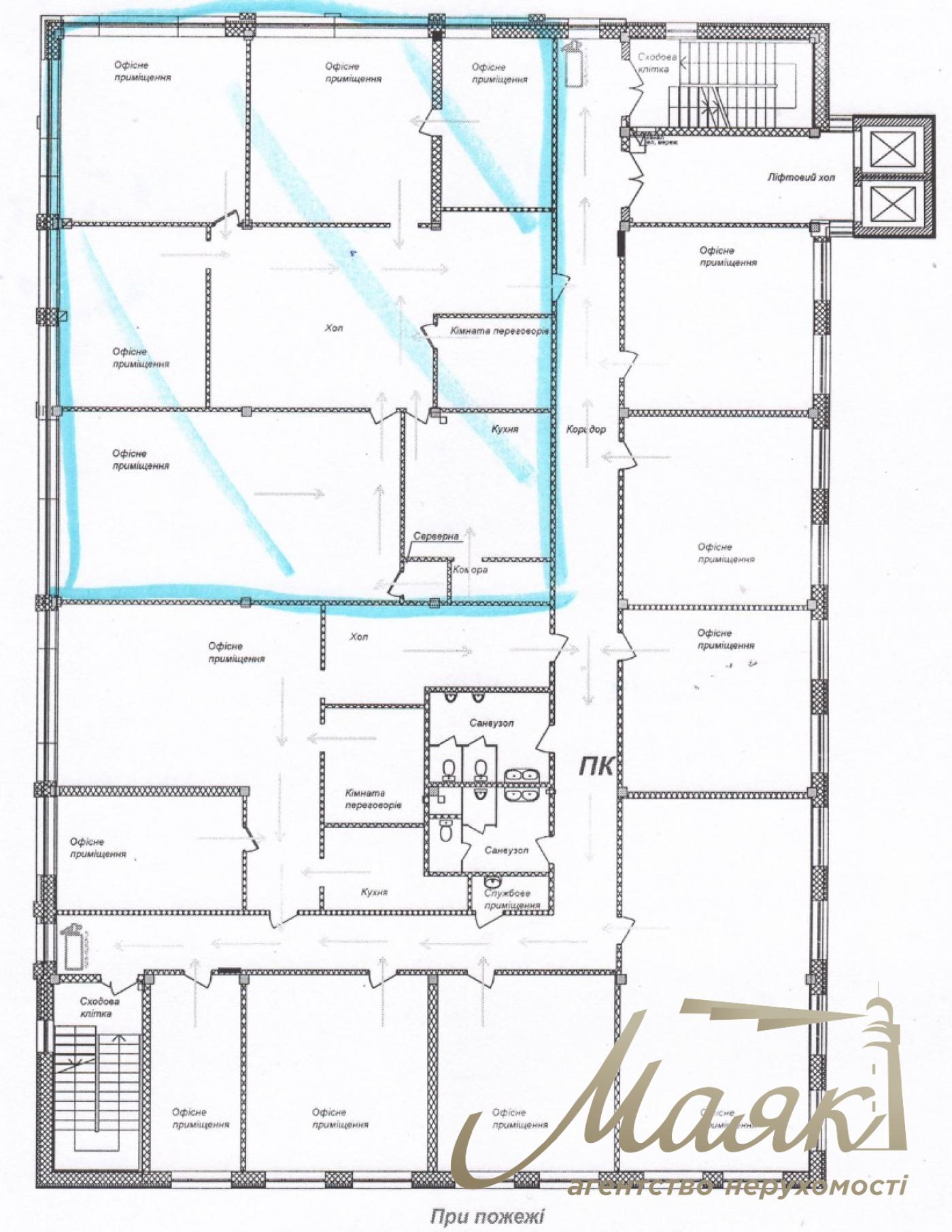
total area: 286 м²
floor/number of floors: 6/6
major repairs
Description
Rent a stylish office in the center of Kiev in the Business Center of class " B" at the address Delovaya Street. Floor 6/6 storey non-residential building. The total area of the office 286 m2. Photos and layout correspond to reality. Layout: - working area - offices/meeting rooms, - kitchen, - server room, - bathrooms on the floor. States: - stylish repair. Excellent transport interchange, in walking distance metro station Olimpiyskaya 5 minutes on foot. Equipment of the Business Center: 1. Air conditioning and ventilation. 2. Water supply and sewerage system. 3. High speed internet. 4. Centralized heating. 5. Fire alarm system. 6. Video surveillance. 7. Access system. 8. Round-the-clock physical security. 9. Elevators - 2, OTIS. 10. Ground parking lot 50 parking spaces. #20885




























