3
Rent a commercial space of 88 sq.m. Residential Complex Nivki Park
id: 29032
1,425 $/ month
$
₴
pros. Beresteyskiy, 65-ВZhK Nivki Park, Svyatoshin, Svyatoshinskiy district, Kyiv
Service sector facility
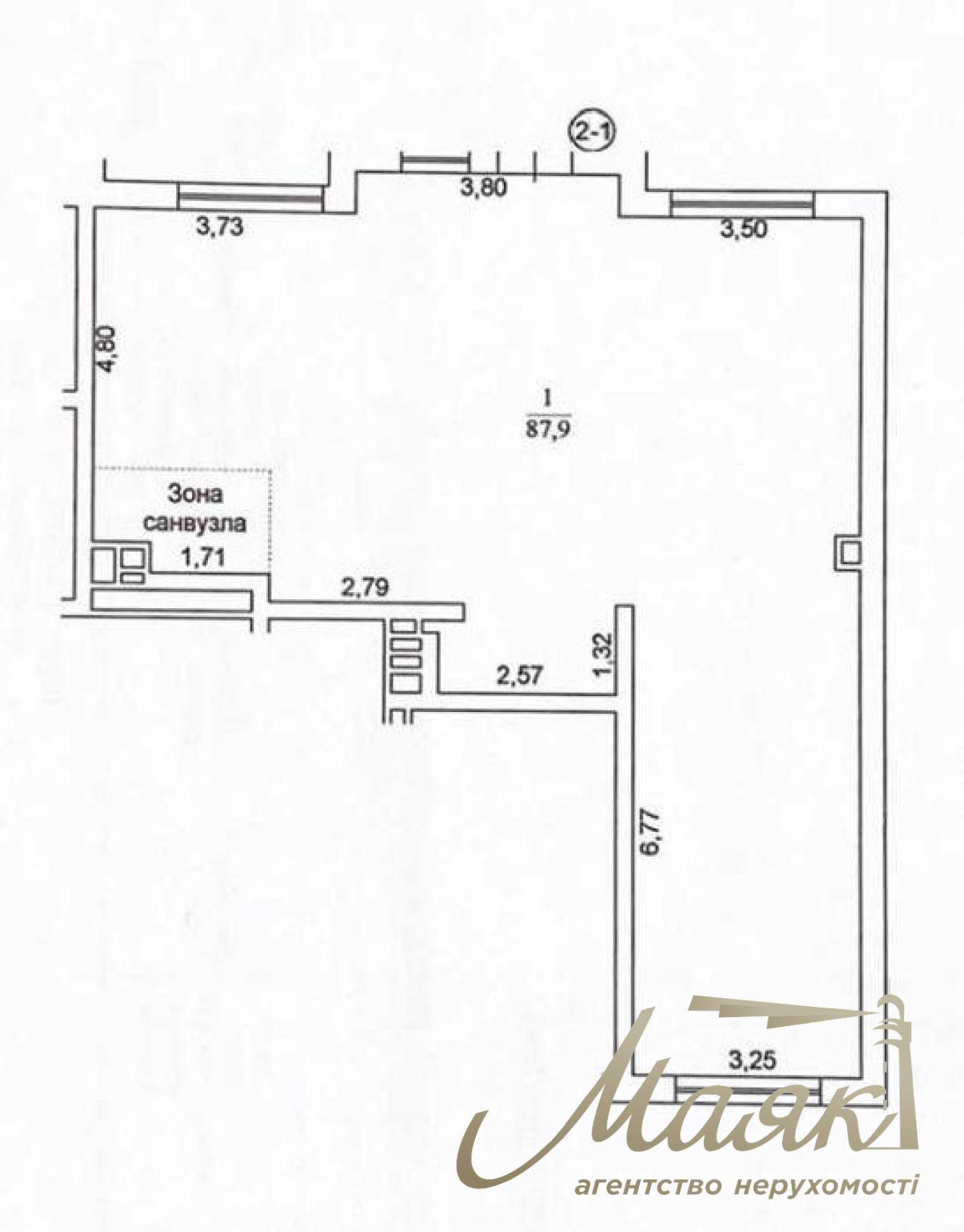
total area: 88 м²
floor: 1
floor/number of floors: 1/undefined
cosmetic repairs
Description
Rent a front room 88 m² | Beresteisky avenue, 65-V | LCD "Nivki Park" | High traffic Location / landmark The premise is located in a modern residential complex "Nivki Park", Svyatoshinsky district. Nearby - ROZETKA, McDonald's, school, kindergarten, densely populated residential area. To the metro station "Nivki" - about 7 minutes on foot. Location with very active pedestrian and automobile traffic. Characteristics of the premises Area: 88 m² 1st floor, direct front entrance Large storefront windows Possibility to place outdoor advertising Renovation Bathroom and all necessary communications Suitable for: dentistry medical center / laboratory beauty salon store / showroom office café or other service format Rental cost: 60 000 UAH/month Call - we will organize viewing at a convenient time! There is a video review of the premises. ID 29032


















