12
Аренда офиса 740м2 в БЦ G Park, Красиловская 9, Голосеевская
id: 28773
18,500 $/ месяц
$
₴
ул. Красиловская, 9Голосеево, Голосеевский район, Киев
Офис
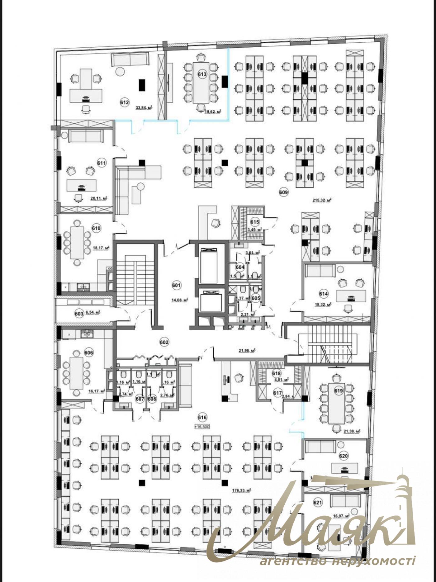
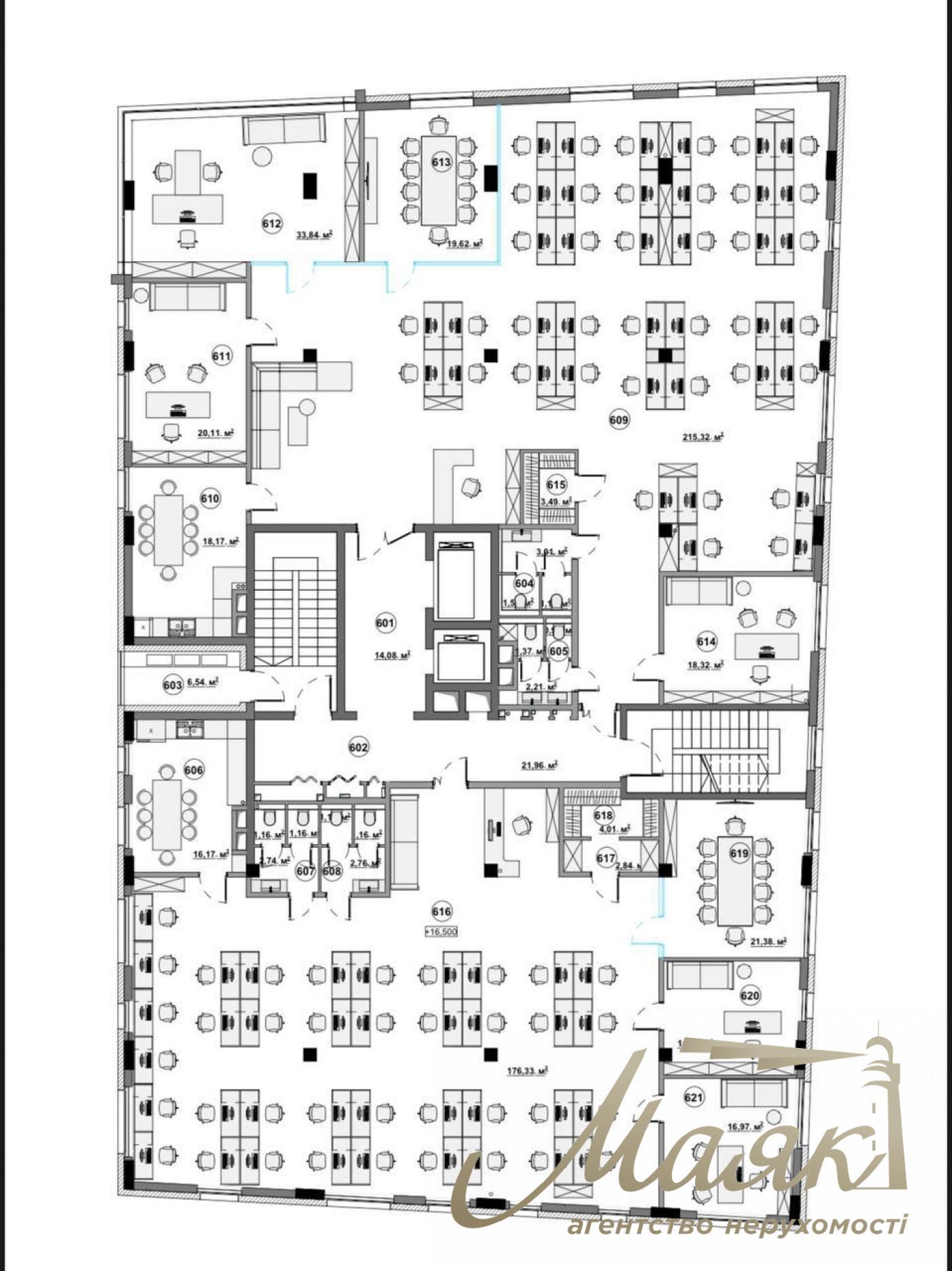
общая площадь: 740.4 м²
этаж/этажность: 6/8
дизайнерский ремонт
Описание
Аренда офиса 740,40м2 в БЦ класса А G-Park ул. Красиловская, Голосееевский район. Офис занимает весь этаж. В офисе выполнен качественный современный ремонт в стиле ЛОФТ. Система кондиционирования, пожарная и пультовая охрана. Функциональная планировка: -опенспейс -кабинеты -переговорная -скайп комната -2 кухни -8 снаузла -2 серверные комнаты G Park – бизнес-центр класса А в Голосеевском районе Киева, с высоким уровнем безопасности, консьерж сервисом, подземным паркингом и конференц залами. БЦ полностью автономный и есть альтернативные источники электроэнергии. Коммерческие условия: аренда 20дол. 5 дол. експлуатационные. #28773




































