19
Продажа 2-к квартиры 70,89м2, ЖК Новопечерские Липки
id: 27852
277,721 $
$
₴
ул. Андрея Верхогляда, 1-20аЖК Новопечерские Липки, Печерск, Печерский район, Киев
общая площадь: 108.91 м²
этаж/этажность: 2/24
без ремонта
Описание
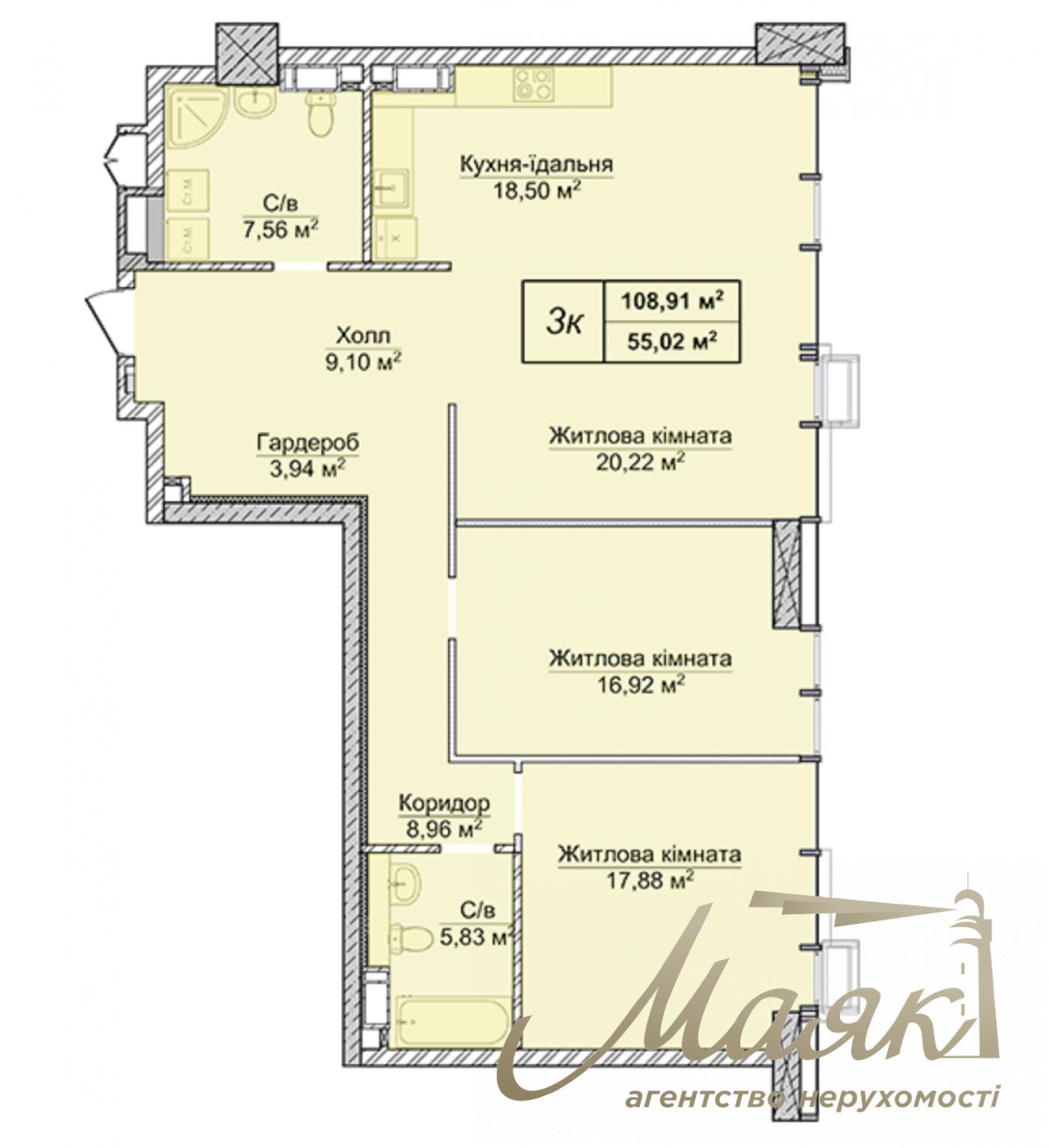
Предлагается в продажу 2-к квартира 108,91м2, ЖК Новопечерские Липки. Общая площадь: 108,91м2. Жилая: 55,02 м2. Планировка: - холл 9,10м2 - гардероб 3,94м2 - кухня - гостиная 18,50 - 3 жилые комнаты ( 20,22м2, 16,92м2 и 17,88м2 ) - 2 сан узла ( 7,56м2 и 5,83м2 ) - коридор ( 8,96м2 ) Состояние: после строителей. Комплекс имеет большой сквер, спорт зал, супер маркет , захватывающие виды города на Днепр, Киево-Печерскую Лавру, Ботанический сад и памятник Родине-Мать. Безупречная система контроля доступа в дом и охраняемая территория; 24-часовой консьерж сервис. Безопасная детская площадка с системой видеонаблюдения во внутреннем дворе комплекса, паркинг на 280 автомобилей, лифты “Kleeman”. Комфортная инфраструктура дома с рестораном, кафе, салоном красоты, стоматологией, магазинами и ресторанами , школой и дет садом. Звоните и мы покажем вам квартиру в любое удобное для Вас время. #27852


















































