13
Продажа дома в закрытом КГ в с. Ходосовка
id: 28406
170,000 $
$
₴
ул. ЗеленогорскаяХодосовка, Киево-Святошинский район, Киевская область
Дом
4 комнаты
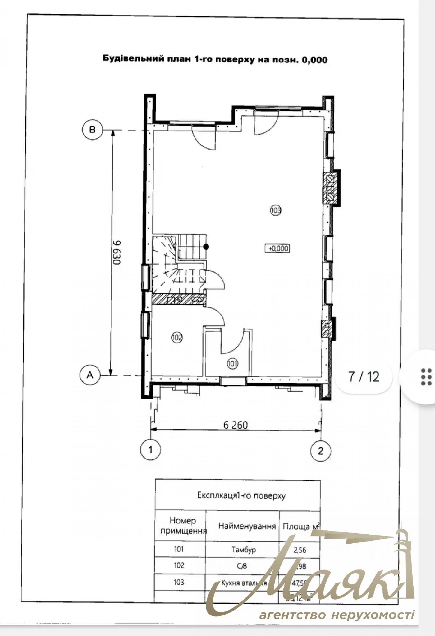
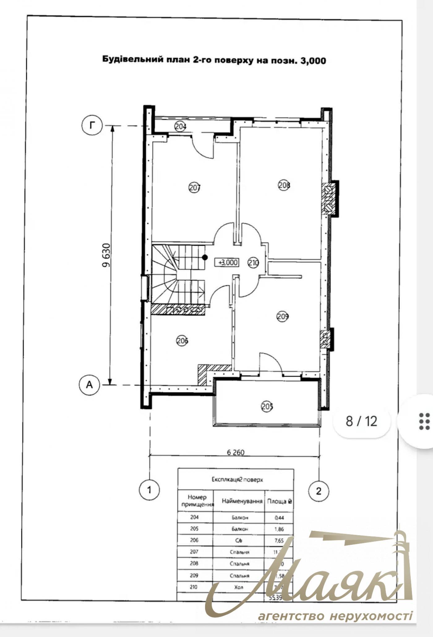
общая площадь: 140 м²
площадь участка: 6 сот.
этажность: 2
без ремонта
Описание
Продажа дома в с. Ходосовка Закрытый коттеджный городок со своим пляжем у озера и живописной панорамой. Дом «Сканди» из керамического кирпича — 140 м² с террасой. Дополнительно предусмотрен навес на два автомобиля. Современный фасад с утеплением минеральной ватой, забор с туями. Дороги в городке выложены тротуарной плиткой. Планировка 1-й этаж: • кухня-гостиная • котельная • санузел • гардеробная 2-й этаж: • три отдельные спальни • санузел • балкон Коммуникации • централизованное водоснабжение • канализация • электроснабжение • газ на участке Площадь — до 7 соток в современном коттеджном городке скандинавского стиля. Территория закрытая, с ландшафтным дизайном, лесом и зонами отдыха на берегу озера. Инфраструктура Рядом всё необходимое для комфортной жизни: • сетевые супермаркеты: «Сильпо», «Мегамаркет», «АТБ», «Фора» • торгово-развлекательный комплекс «Мануфактура» • McDonald’s • конно-спортивный клуб «Equides Club» • школы и детские сады • до центра Киева — всего 20 минут на авто Этот дом — идеальное сочетание современного комфорта, природы и удобной локации. Позвоните уже сегодня, чтобы получить подробную информацию и договориться о просмотре! #28406






































