6
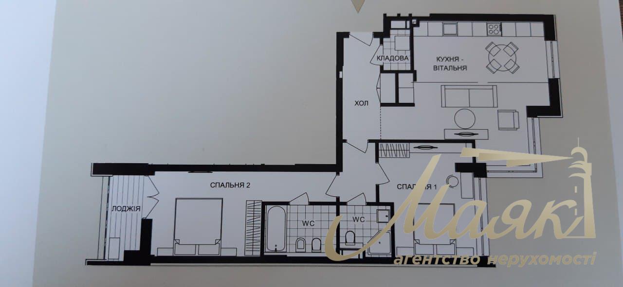
Продаж 2-х кімн. квартири, 85 м2, ЖК Crystal Park Tower
id: 6470
153,000 $
$
₴
2 кімнати
загальна площа: 85 м²
житлова площа: 47 м²
площа кухні: 29 м²
поверх/поверховість: 7/22
без ремонту
Опис
Продається чудова двокімнатна квартира у найсучаснішому будинку бізнес-класу ЖК Crystal Park Tower, який розташований за адресою: проспект Перемоги, 42, у дивовижному місці серед 60 га зелених зон, поблизу парку Пушкіна, парку КПІ та зоопарку. Квартира розташована на 7 поверсі, на другій секції. Панорамне скління на лоджії, а також у спальні та на кухні дозволить вам милуватися прекрасними видами. Також територія закритого типу, багаторівнева система безпеки (карткова система доступу, відеоспостереження, охорона). Високий рівень сервісу, зручна транспортна розв'язка, розвинена інфраструктура.
























