7
Apartment for sale in KYIVPROEKT City Space residential complex with free layout
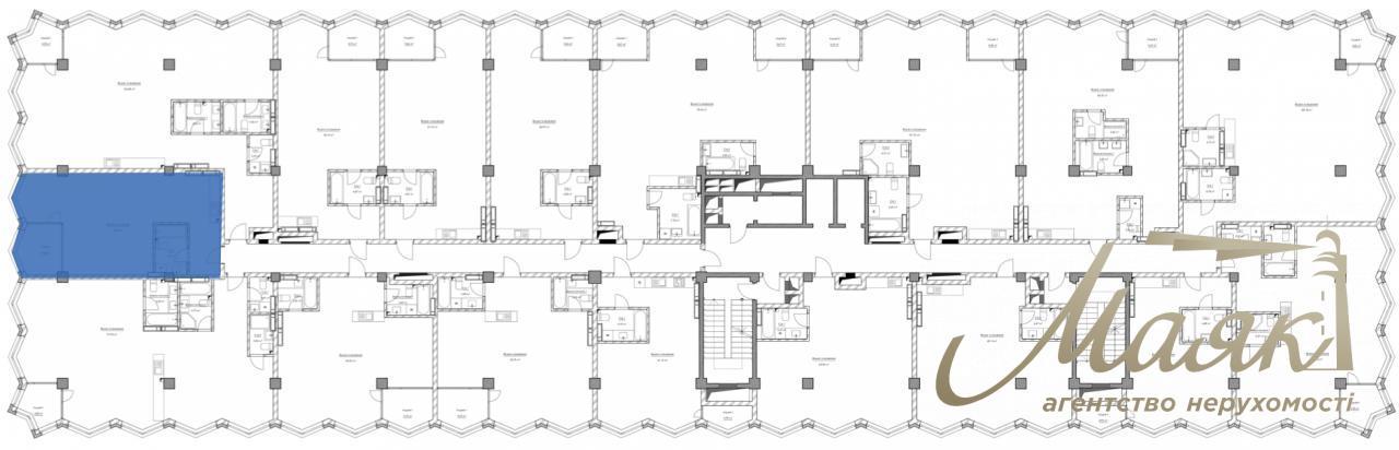
id: 9698
236,000 $
$
₴
Description
An apartment in a new business class residential complex KYIVPROEKT City Space with a free layout from the developer SAGA Development is offered for sale. The projects of this developer always stand out among many others for their unique architecture and holistic approach with important values. They shape the values of the consumer, are based on an open position to new horizons of perception. They harmoniously balance between privacy and corporateness. KYIVPROEKT is a cultural center, it was here that all the buildings of the city of Kyiv were designed in the modernist style in the post-war period. The goal of the renovation of Kyivproekt in KYIVPROEKT City Space is to create a new ecosystem in the center of Kyiv that will combine architecture and design, art and technology, education and business. This is a place for those who want to be where everything new, progressive and fashionable is born. For talents, innovators and visionaries. On the territory of the complex there will be a permanent exhibition based on the digitized archives of Kyivproekt. There will also be educational platforms for architects, designers and a children's architectural school. And for young artists there will be an art residence with curators with the opportunity to exhibit on the territory of KYIVPROEKT City Space.


























