45
Sale of house (185m2) Zhulyany, Kyiv
id: 16294
230,000 $
$
₴
st. Sergiya Kolosa, 2Zhulyani, Solom'yanskiy district, Kyiv
House
4 rooms
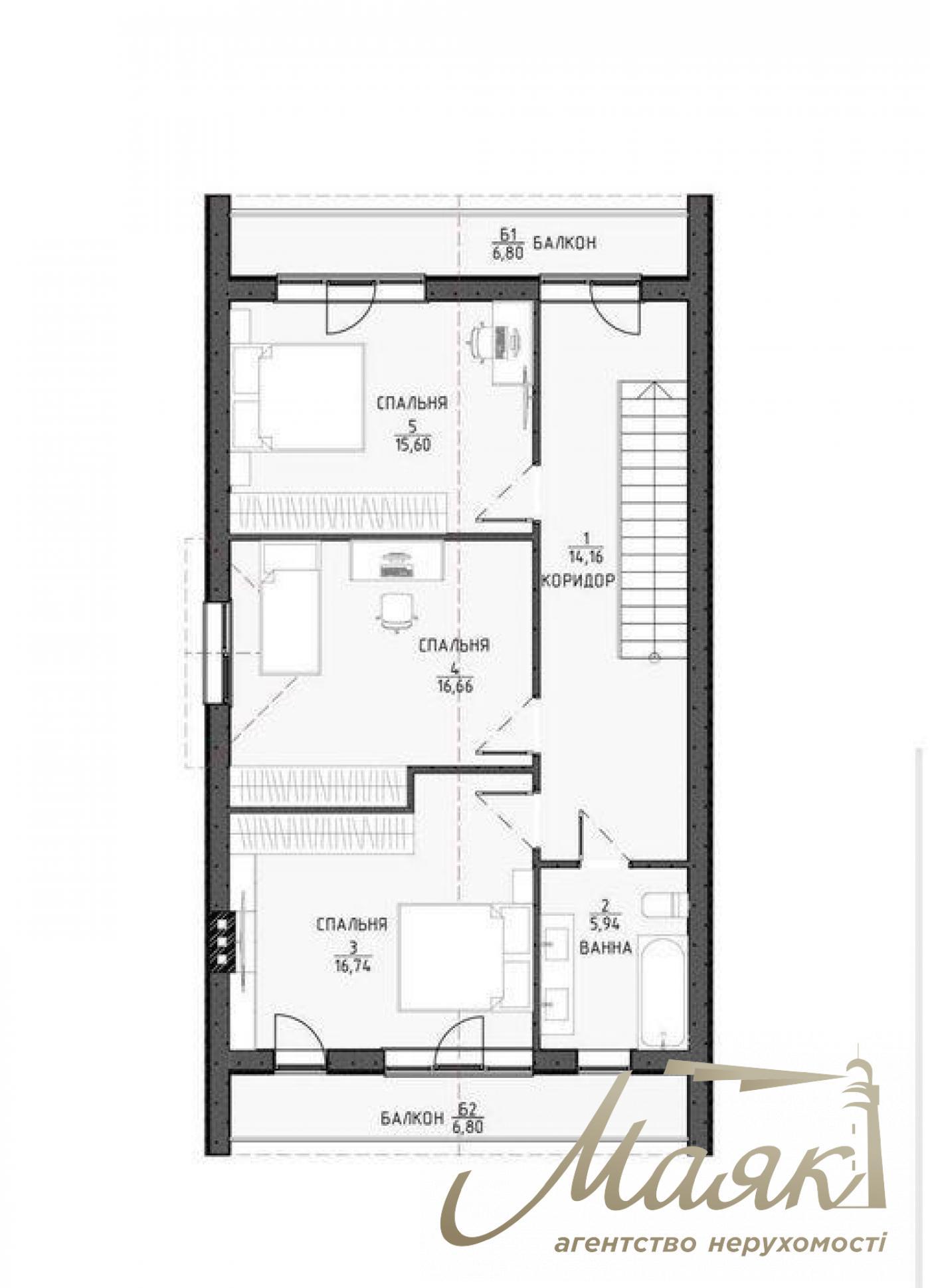
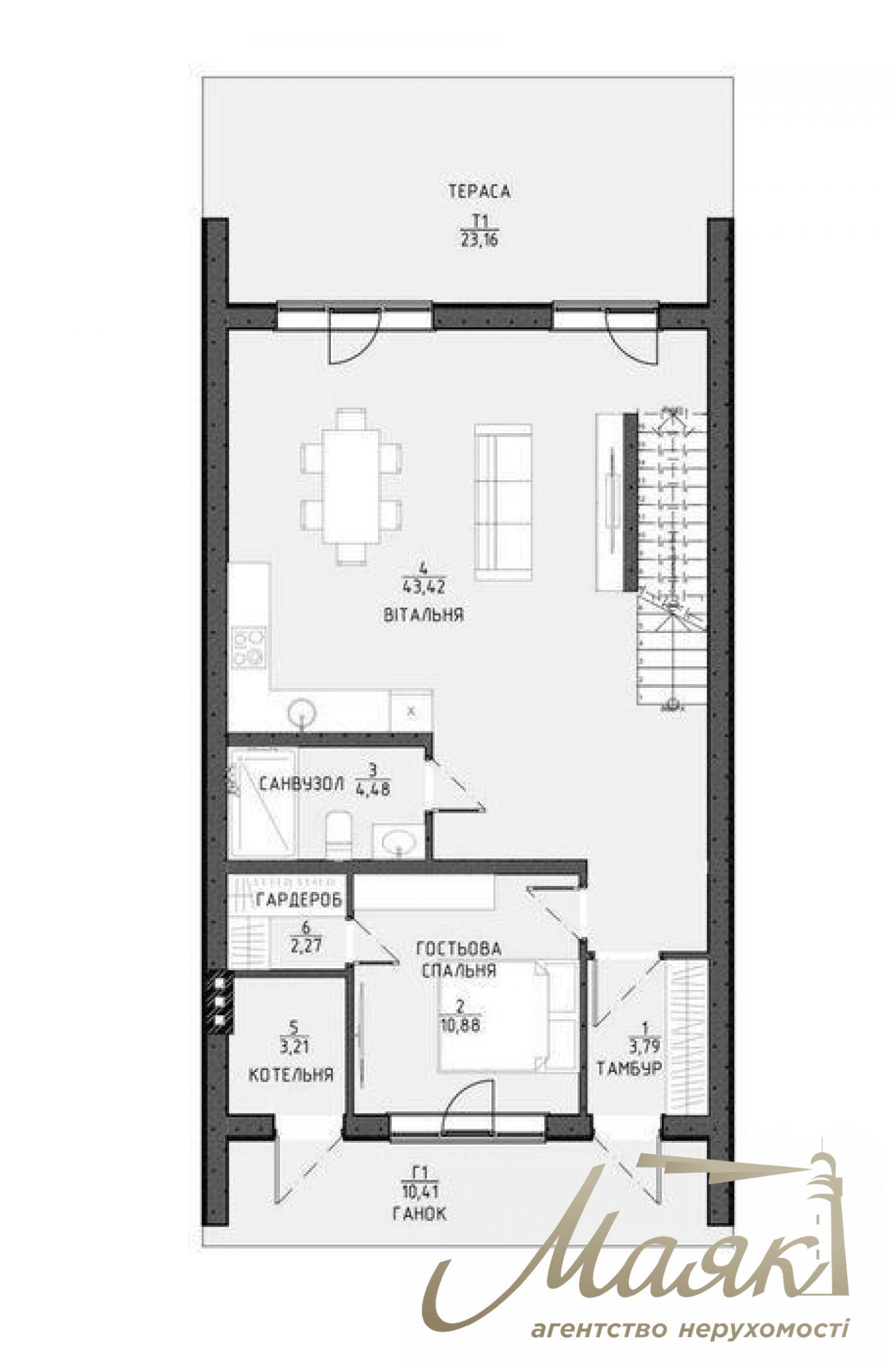
total area: 185 м²
area land: 4 hsm.
number of floors: 2
major repairs
Description
Offered for sale house (185m2) in Kiev, in a closed street from strangers! (near the street Sergey Kolos 2B) The size of the plot 4. 5 acres. Planning: 1 floor: kitchen-living room, bedroom, c/u, dressing room, boiler room, vestibule, terrace. 2 floor: 3 bedrooms, c/a, balcony, corridor. There is gas, and its own well. Installed energy-efficient boiler. (up to 3000grn/month in winter). The house is commissioned, fenced. In the yard is also paving stones and a new lawn. Near the new school, city public transportation stops, post office and kindergartens. There is an opportunity to finish the work "turnkey" under the wishes of the buyer. The house is built with warm Gazoblock D500, insulated with polystyrene foam 100mm. decorative plaster CERESIT. The house is located 2 km from the metro station Vasilkovskaya. There is video surveillance and a separate driveway. It all must be seen as to describe it is not real! There are all step-by-step photos of construction. The house is made under the finishing design finish. Repair costs will be minimal! Insulated with German materials. Putty for painting or wallpaper. Windows REHAU EURO 70 with energy saving. Made heating and WATER warm floors, cold and hot water distribution, and all the sewerage to the points. The house has three phases of electricity. Divorced all non-combustible copper wiring, including the Internet and TV. Installed protection against voltage fluctuations. ID: 16294






































































































